601 Tierney Pl

$779,000 2,073 SQ FT
$376 SQ/FT

601 Tierney Pl

@ Arnold Dr - The Villages At Arnold, Martinez

Map direct
  • 4 Bed
  • 3.5 (3/1) Bath
  • 2 Park
  • 2,073 sqft
  • Martinez
  • Payment calculator
CON
  • Favorite
  • Hide
Message Tracey Broadman

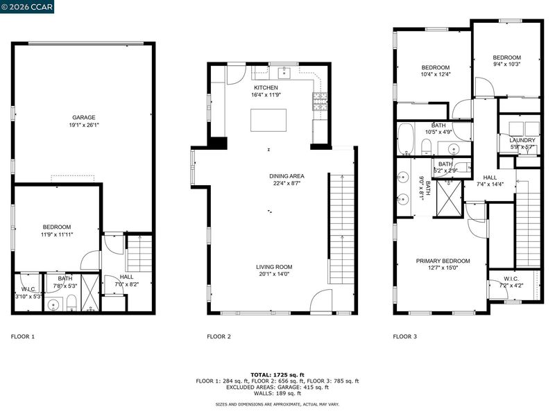
Experience elevated living in this stunning end-unit home that lives like a single-family residence. With over 2,000 sq ft, this light-filled home offers 4 bedrooms, 3.5 baths, and an ideal open-concept layout designed for both everyday living and unforgettable entertaining. The beautifully appointed kitchen features a gas range, walk-in pantry, and generous prep space, flowing seamlessly into the expansive great room with sleek engineered wood flooring, a modern aesthetic, and room for both a large dining table and big screen TV. Step onto the private balcony—perfect for grilling or unwinding at sunset. A highly desirable main-level bedroom with a full bath offers flexibility for guests, a home office, or multigenerational living. Upstairs, retreat to the luxurious primary suite with a spa-inspired bath, dual vanities, and an oversized walk-in closet. Two additional spacious bedrooms, a convenient laundry room, and a tankless water heater complete the upper level. Enjoy energy efficiency, abundant storage, and a two-car garage. Ideally located in The Villages at Arnold with distant views of Mt. Diablo, a community tot lot, and close proximity to parks, top-rated schools, BART, freeways, and vibrant Downtown Martinez. Don’t miss this exceptional opportunity!

Current Status
Active - Coming Soon
Original Price
$779,000
List Price
$779,000
On Market Date
Apr 12, 2026
Property Type
Condominium
D/N/S
The Villages At Arnold
Zip Code
94553
MLS ID
41130661
APN
1615900253
Year Built
2016
Stories in Building
Unavailable
Possession
See Remarks, Seller Rent Back
Data Source
MAXEBRDI
Origin MLS System
CONTRA COSTA
Bed
4
Bath
3.5 (3/1)
Parking
2
Attached, Int Access From Garage, Guest
SQ FT
2,073
SQ FT Source
Public Records
Pool Info
None
Kitchen
Dishwasher, Gas Range, Microwave, Refrigerator, Tankless Water Heater, Breakfast Bar, Stone Counters, Disposal, Gas Range/Cooktop, Pantry
Cooling
Central Air
Disclosures
Disclosure Package Avail
Entry Level
1
Flooring
Engineered Wood
Foundation
Fire Place
None
Heating
Forced Air
Laundry
Laundry Room, In Unit, Upper Level
Upper Level
0.5 Bath
Main Level
1 Bedroom, 1 Bath, Main Entry
Views
Hills
Possession
See Remarks, Seller Rent Back
Architectural Style
Contemporary
Non-Master Bathroom Includes
Shower Over Tub
Construction Status
Existing
Location
Level
Roof
Composition
Water and Sewer
Public
Fee
$392

MLS and other Information regarding properties for sale as shown in Theo have been obtained from various sources such as sellers, public records, agents and other third parties. This information may relate to the condition of the property, permitted or unpermitted uses, zoning, square footage, lot size/acreage or other matters affecting value or desirability. Unless otherwise indicated in writing, neither brokers, agents nor Theo have verified, or will verify, such information. If any such information is important to buyer in determining whether to buy, the price to pay or intended use of the property, buyer is urged to conduct their own investigation with qualified professionals, satisfy themselves with respect to that information, and to rely solely on the results of that investigation.

School data provided by GreatSchools. School service boundaries are intended to be used as reference only. To verify enrollment eligibility for a property, contact the school directly.

Listings © 2026 Paragon MLS

Copyright © 2026 Theo Inc. All Rights Reserved